Bilocale in Via Nostra Signora della Scala a Chieri
- 450€
Riepilogo
- Appartamento
- 50 m²
- 1950
- 2
- 1
- 1
Descrizione
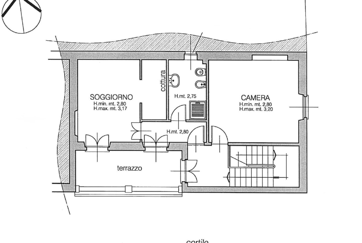
Appartamento in palazzina bifamiliare ristrutturata, sito in Chieri Via Nostra Signora della Scala. In posizione comoda al centro e comoda ai servizi, si affitta appartamento bilocale di Mq 50 c.a., posto al piano primo di piccola palazzina degli anni ’50 (NO ascensore), con tetto rifatto di nuovo, così composto: ingresso indipendente alla palzzina, dal cortile/giardino comune, scala di collegamento al piano primo dove si sviluppa l’unità immobiliare, doppio disimpegno, soggiorno con angolo cottura, camera da letto, bagno con doccia e terrazzo. L’appartamento è stato oggetto di recente ristrutturazione; serramenti nuovi con vetri doppi a camera, pavimenti in parquet sia nel soggiorno sia nella camera da letto, bagno rifatto. Riscaldamneto autonomo a metano. Nessuna spesa di gestione condominiale. Tutte le utenze sono autonome eccetto l’acqua potabile (contatore unico e suddivisione in base alle persone). Posizione comoda ai servizi; possibilità di parcheggio nelle immediate vicinanze.
Dettagli
-
Anno di costruzione 1950
-
allestimento non arredato
-
terrazzo mq 10
-
tipo riscaldamento autonomo
-
alimentazione metano
-
piano 1
-
tipologia delle stabile civile
-
stato conservazione ristrutturato
Indirizzo
Informazioni di contatto
Immobili simili
- caradonna













