Account
Locale commerciale con magazzino
- 100.000€
Riepilogo
ID immobile: 10031
- Negozio
- 115 m²
- 1900
- 3
- 2
- 1
Descrizione
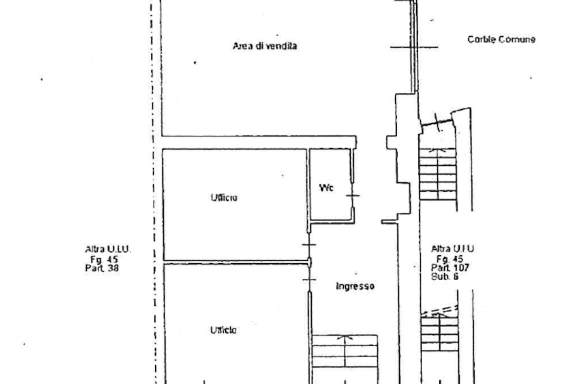
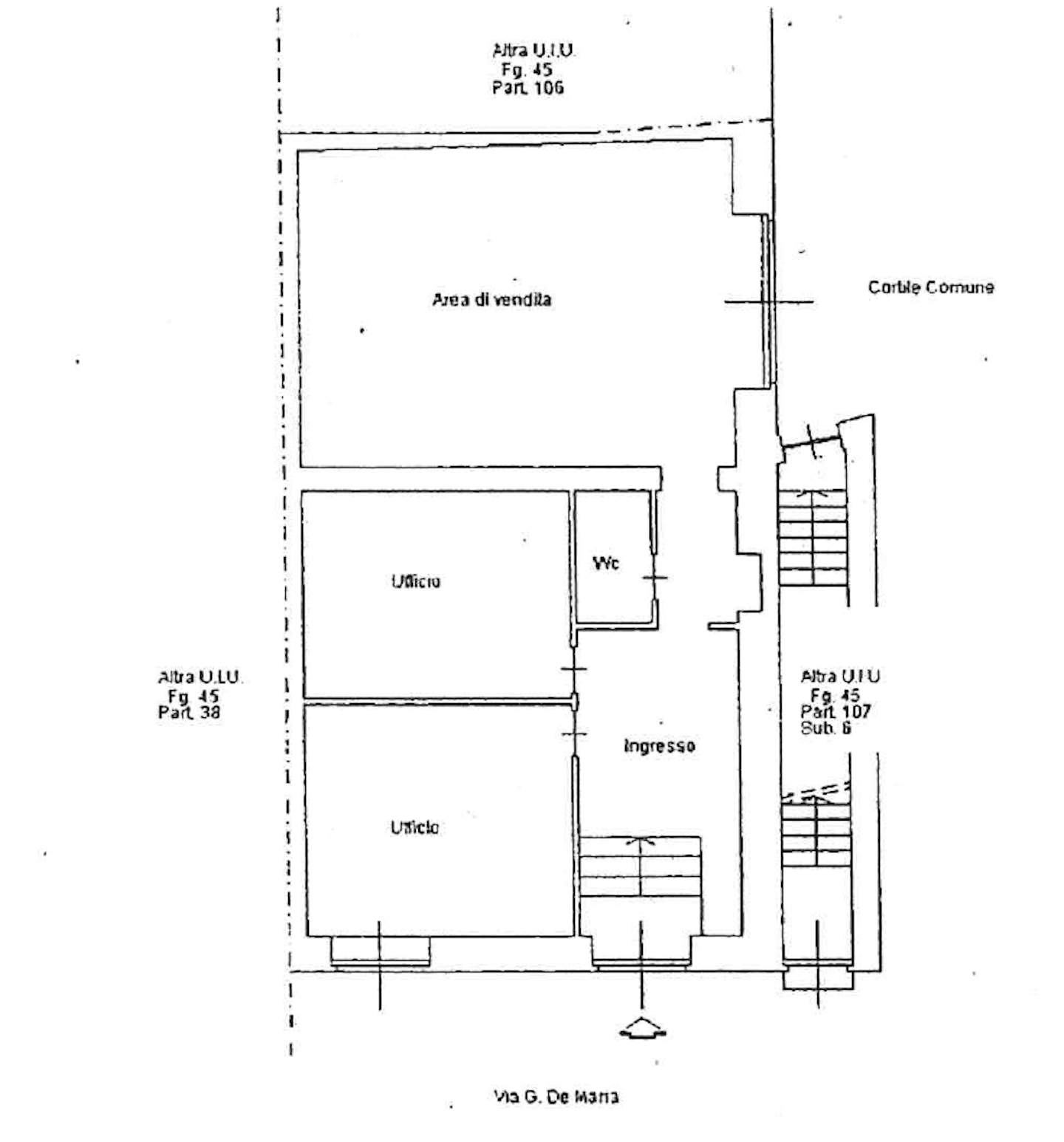
In costruzione dei primi del ’900, con facciata in intonaco, inserita in contesto storico, si vende locale commerciale ad uso negozio di Mq 115 c. a. complessivi posto al piano terreno/rialzato, con ingresso indipendete da strada. L’immobile è così composto: ingresso da Via De Maria tramite scala di pochi gradini, nr 2 vani, di cui uno finestrato e bagno per un toale di Mq 65 c. a. Sul retro, locale ad uso magazzino, di Mq 50 c. a. con uscita sul cortile comune interno. Buone condizioni interne, locali climatizzati e dotati di caldaia autonoma metano, a condensazione. Nessuna spesa di gestione condominiale.
Dettagli
-
Anno di costruzione 1900
-
tipo riscaldamento autonomo
-
alimentazione metano
-
piano terra
-
tipologia delle stabile civile
-
stato conservazione buone condizioni
Indirizzo
Apri in Google Maps-
Indirizzo: Via de Maria, 4, Chieri, TO, Italia
Calcolo del mutuo
Mensile
-
Anticipo
-
Importo del mutuo
-
Rata mensile
Accessori
Classe energetica
-
Classe Energetica: F
-
Indice di prestazione globale: 165,12
-
Indice di prestazione energie rinnovabili: 4,24
- A+
- A
- B
- C
- D
- E
- 165,12 | Energy class FF
- G
- H
Informazioni di contatto
Immobili simili
Negozio Mq 90
- 195.000€
Locale commerciale
- 343.000€
- caradonna










