Negozio con vista sul Duomo
- 560€
Riepilogo
- Negozio
- 65 m²
- 1900
- 2
- 1
Descrizione
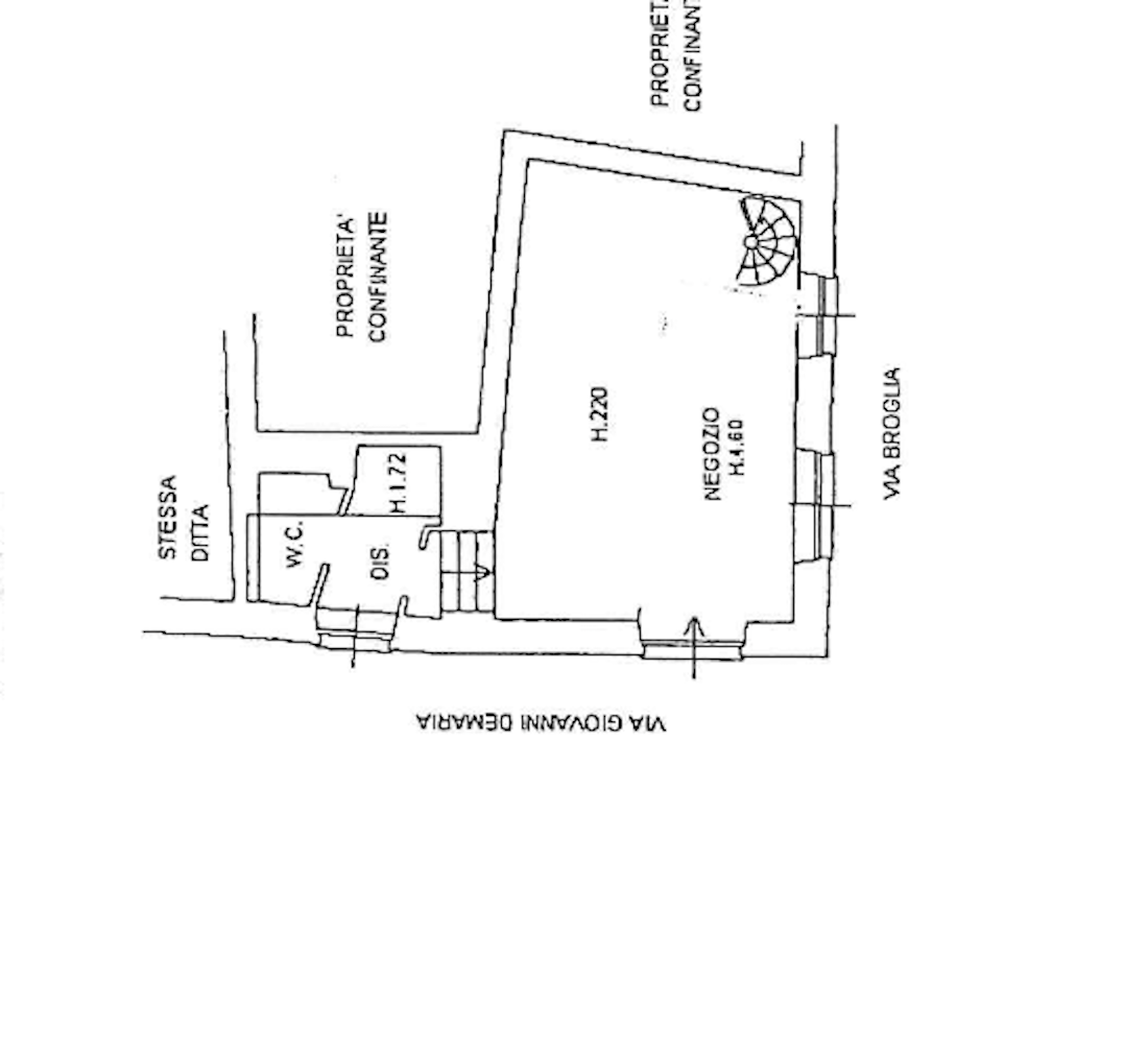
Locale commerciale ad uso negozio in posizione centrale, adiacente a Piazza del Duomo. In palazzina d’epoca in buone condizioni con facciata in intonaco, si affitta negozio di Mq 65 c. a. complessivi, posto al piano terreno con soppalco, in posizione angolare, con accesso principale da via De Maria. L’immobile è composto da 2 vani, con due vetrine, oltre ad antibagno e bagno, al piano terreno (Mq 55 c.a.) e da un piano soppalco direttamente collegato internamente da una comoda scala. Ottime condizioni interne, il locale è stato oggetto di totale ristrutturazione: scala interna con pedate in legno, soffitti a cassettoni. Riscaldamento autonomo metano. Basse spese di gestione condominiale (euro 300,00 circa all’anno). Ottima posizione centrale, in zona di forte passaggio pedonale e veicolare, ben visibile da Piazza del Duomo, con possibilità di parcheggio nelle immediate vicinanze. CANONE mensile: EURO 560,00 + IVA. LIBERO da subito
Dettagli
-
Anno di costruzione 1900
-
tipo riscaldamento autonomo
-
alimentazione metano
-
piano terra
-
tipologia delle stabile civile
-
stato conservazione buone condizioni
-
categoria catastale C1
Indirizzo
Apri in Google Maps-
Indirizzo: Via de Maria, 2, Chieri, TO, Italia
Classe energetica
-
Classe Energetica: E
-
Indice di prestazione globale: 340,24
- A+
- A
- B
- C
- D
- 340,24 | Energy class EE
- F
- G
- H
Informazioni di contatto
Immobili simili
- caradonna















