Porzione di casa in Piazzetta San Giorgio
- 850.000€
- 850.000€
Riepilogo
- Porzione di casa
- 450 m²
- 1600
- 9
- 6
- 4
Descrizione
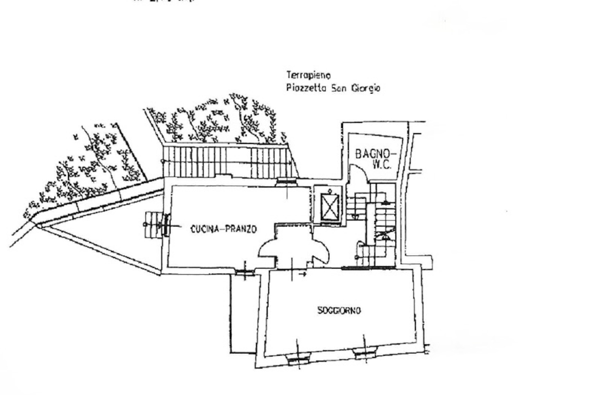
Casa signorile indipendente sulla sommità della ’chiocciola’ della città di Chieri. Nel centro storico medievale e nel punto più panoramico della città, adiacente alla Chiesa di San Giorgio, si vende casa signorile libera su tre lati e con doppio ingresso, da Piazzetta San Giorgio e da Via Giacomo Nel. Trattasi di una costruzione del 1600, completamente ristrutturata nei primi anni 2000 con finiture di pregio; la casa si sviluppa su più livelli per complessivi Mq 450 c.a. e segue la linea della collina. L’ingresso da Piazzetta San Giorgio avviene direttamente all’ultimo piano dell’abitazione di Mq 75 c.a ed è composto da ingresso, 2 camere/studio dai soffitti con ampi travi in legno e dal vano scala; il piano sottostante che è posizionato al piano primo dell’abitazione è di Mq 75 c.a. ed è costituito dalla zona giorno, composta da disimpegno, soggiorno con camino, cucina con zona pranzo e uscita sul balcone, un bagno; la scala di collegamento conduce alla zona notte, sempre di Mq 75 c.a. posta al piano terreno ed è composta da disimpegno, 3 camere da letto, bagno, un terrazzo di Mq 10 c.a. Il disimpegno conduce poi al lato opposto del piano, dove è presente la cantina con soffitto a volta e con inserti di mattoni a vista. Il piano terreno si contraddistingue per l’area esclusiva adibita a giardino e terrazzo di Mq 250 c.a. da cui si gode di una splendida vista su tutta la città. La proprietà si completa di un ampio piano seminterrato di Mq 185 c.a. complessivi, direttamente collegato all’abitazione tramite un comodo passaggio interno; dispone, inoltre, di un ingresso privato da Via Giacomo Nel che da l’accesso alla spaziosa autorimessa di Mq 107 c.a. Il seguente piano è inoltre costituito da 2 ulteriori locali abitativi. L’immobile dispone di un ascensore interno privato che collega ogni singolo piano. Dispone, inoltre, di: impianto di condizionamento nella zona giorno, allarme, videocitofono, tende da sole sul vano cucina, serramenti esterni in legno con vetri a doppia camera e persiane in legno in stile tipico piemontese, riscaldamento a metano con caldaia autonoma; i pavimenti sono in parquet nel soggiorno e nelle camere da letto; la struttura della scala è in ferro e le pedate sono in pietra di luserna, l’abitazione è dotata di pozzo per raccolta acqua piovana, irrigazione automatica del giardino; portoncino d’ingresso blindato e apertura automatizzata del garage. L’abitazione è inoltre decorata con affreschi mentre la pavimentazione di due piani è realizzata nella preziosa quarzite ormai introvabile causa esaurimento delle cave. La posizione centrale ed elevata rende l’immobile una soluzione abitativa perfetta per chi cerca il fascino del centro storico con un godibile giardino, senza rinunciare alle comodità che offre l’abitazione stessa e la comodità a tutti i servizi.
APE in richiesta
Dettagli
-
Anno di costruzione 1600
-
vetri vetrocamera
-
porta blindata
-
cantina 1
-
giardino mq 250
-
box auto autorimessa
-
balconi nr 1
-
terrazzo mq 10
-
tipo riscaldamento autonomo
-
alimentazione metano
-
piano terra
-
tipologia delle stabile medio signorile
-
stato conservazione ristrutturato
-
categoria catastale A2
Indirizzo
Apri in Google Maps-
Indirizzo: Piazzetta San Giorgio, Chieri, TO, Italia
Calcolo del mutuo
-
Anticipo
-
Importo del mutuo
-
Rata mensile
Informazioni di contatto
Immobili simili
Porzione di casa
- 180.000€
Porzione di villa
- 390.000€
- caradonna

















































